 |
レーベン宮崎ONE TOWER 宮崎の3LDK賃貸マンション |
お問合わせNO: CH46966541 |
|
|
| 家賃 |
22.5万円 |
共益費 / 管理費 |
15,000円 / 無 |
敷金 / 礼金 |
2ヶ月 / 1ヶ月 |
| 種別 / 構造 |
マンション / RC造(鉄筋コンクリート造) |
主要採光面 |
南 |
保証金 / 敷引 |
0ヶ月 / 0ヶ月 |
| 専有面積 |
68.2m2 |
所在階 / 階数 |
9階 / 20階 |
築年月 |
新築 |
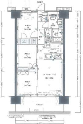
| 間取り |
3LDK
( LDK11.3畳/洋室5.5畳/洋室6畳/洋室5畳 ) |
交通
|
JR日豊本線 「宮崎駅」 徒歩7分
JR日豊本線 「宮崎神宮駅」 徒歩31分
JR日豊本線 「南宮崎駅」 徒歩37分
|
| 所在地 |
宮崎県宮崎市高千穂通1丁目 周辺MAP |
|
|
|
【レーベン宮崎ONE TOWERについてスタッフからのイチオシポイント!】
宮崎県最高層!新築20階建てデザインタワーレジデンス!最新の先進設備を備えたハイクオリティ★
ガーデンラウンジ・ゲストルーム設置・フィットネスジムが利用できます★
宮崎駅まで徒歩7分と好立地、宮崎県最高層の20階建てマンションです!
レーベン宮崎ONE TOWERは宮崎県宮崎市高千穂通1丁目【JR日豊本線 宮崎駅徒歩7分】にある3LDK賃貸マンションです。
新築築の20階建てのマンションで、お部屋は20階建ての9階部分です。
物件の広さは68.2m2で人気の3LDKです。
※お部屋のもっと詳しい内容や入居時期、諸条件のご相談など、ホームページには掲載が間に合わず載せきれていない情報もございます。 気になることが御座いましたらお気軽にメールにてお問い合わせください。 |
|
| 損保 |
要 |
更新料 |
なし |
鍵交換代 |
- |
| 駐車場 |
あり15,000円 |
近隣駐車場 |
|
契約期間
借家区分 |
2年 - |
| 現況 |
未完成 |
入居可能日 |
2026年1月31日 |
取引態様 |
媒介 |
| 保証人代行会社 |
ジェイリース 初回80%&毎月保証料800円 |
仲介手数料 |
24.75万円 |
バイク置き場 |
|
| 他初期費用 |
|
| キッチン |
|
| バス・トイレ |
- バストイレ別
- シャワー付洗面台
- 温水洗浄便座
- 洗面化粧台
- 室内洗濯機置き場
- 分譲賃貸
|
| 住空間 |
|
| 設備・サービス |
- クロゼット
- シューズボックス
- 収納スペース
- TVインターホン
- オートロック
- エレベーター
- ネット使用料不要
|
| 特 徴 |
|
| 条件・その他 |
|
| コメント |
宮崎県最高層!新築20階建てデザインタワーレジデンス!最新の先進設備を備えたハイクオリティ★
ガーデンラウンジ・ゲストルーム設置・フィットネスジムが利用できます★
宮崎駅まで徒歩7分と好立地、宮崎県最高層の20階建てマンションです! |
| 周辺環境 |
|
高千穂乳児保育園268m
宮崎市立江平小学校1164m
宮崎市立宮崎西中学校1088m
如月会若草病院756m
北野エース宮崎山形屋店423m
セブンイレブン宮崎高千穂通2丁目店339m
私立日向学院高校までの距離:1137m
宮崎県庁までの距離:1085m
|
宮崎中央郵便局までの距離:252m
宮崎公立大学附属図書館までの距離:1675m
宮崎北警察署までの距離:604m
宮崎中央公園までの距離:1232m
ゆうちょ銀行宮崎店までの距離:252m
宮崎山形屋までの距離:600m
ドラッグストアモリ宮崎駅前店までの距離:594m
ハンズ宮崎店までの距離:687m
|
|
| 備 考 |
・各階ゴミ置場設置・ハンズフリーキー・Takara no Mizu(家中すべての生活水を浄活水可)※有料でカートリッジの交換は必要です。・駐車場はまだ未確定(区画により料金が異なります。)・退去時クリーニング費用:88,000円 |
| 情報更新日:2025年11月10日 |
次回更新予定日:2025年11月24日 |
|
※各種情報と現状に差異がある場合は、現状優先となります。 |
|
こちらの物件の空室状況 |
| 所在階 / 部屋番号 |
賃料 |
共益費 / 管理費 |
間取り |
専有面積 |
敷金 |
礼金 |
お気に入り |
物件詳細 |
| 902 |
22.5万円 |
15,000円 / - |
3LDK |
68.2m2 |
2ヶ月 |
1ヶ月 |
お気に入り |
物件詳細 |
|
|